10 Fotos und Anhänge ansehen
Neuer Grund Immobilien Wolfgang Müller und Stefanie Graf GbR
Arndtstraße 6, 53859 Niederkassel
Teilen

Hausansicht

Ansicht Wohnzimmer

Wohnzimmer

Einbauküche 1

Einbauküche

Ansicht Schlafzimmer

Dusche

Ansicht Bad

Schlafzimmer

Aufzug

++Bad Honnef zentral: Renovierte 2 Zimmer auf 48 m²+++

Eckdaten

  • Art Etagenwohnung
  • Lage 53604 Bad Honnef
  • Kaufpreis 155.000,00
  • Wohnfläche ca. 48
  • Zimmer 2
  • Kellerfläche ca. 6
  • Baujahr 1995
  • Etagenzahl 2
  • Etage 2
  • Alt-/Neubau Neubau
  • Denkmalschutzobjekt nein
  • Heizungsart Gas-Heizung Zentralheizung
  • Einbauküche ja
  • Gäste-WC nein
  • Vermietet nein
  • Bezugstermin sofort
  • Fahrzeit nächste Autobahnauffahrt 3 min
  • Bodenbelag Laminat Fliesen
  • Ausstattung des Bades Dusche
  • Zustand Gepflegt
  • Immobilien-ID 5114
  • Provision 3,57 inkl. MwSt.

Immobilie

Bad Honnef: Hauptstraße 11-Seniorengerecht!

Diese top gepflegte 2 Zimmer – Wohnung bietet Ihnen auf ca. 48 m² ein zentrales Zuhause unweit der Innenstadt von Bad Honnef.

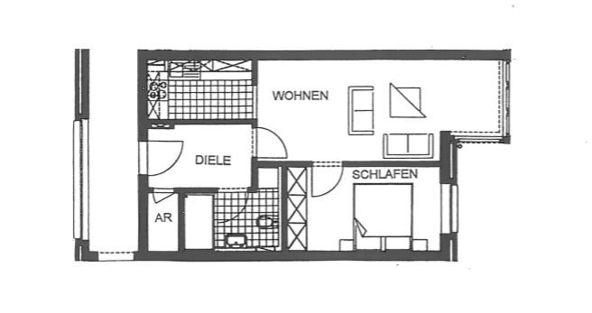
Über einen Aufzug gelangen Sie in das 2. Obergeschoss eines Mehrparteienhauses. Sie betreten die Wohnung über einen geräumigen Flur, der ausreichend Platz für eine Garderobe bietet. Ein Abstellraum für Reinigungsmittel, Staubsauger etc. ist vorhanden.
Die Wohnung verfügt über ein barrierefreies Bad mit ebenerdiger Dusche und hochwertigen Fliesen und Armaturen. Im Bad besteht die Möglichkeit eine Waschmaschine aufzustellen.

Der Wohnraum besticht durch helle Fensterfronten. Dieser ist, wie auch das Schlafzimmer mit neuem und hellem Laminat ausgestattet.

Vom Wohnzimmer aus betreten Sie die Küche, welche mit Einbauten versehen ist. Der Kühlschrank wurde erneuert.
Im Erdgeschoss des Hauses befindet sich eine Cafeteria, die täglich über mehrere Stunden geöffnet hat.
Dienstleistungen im Haus:
Die Johanniter Unfallhilfe ist täglich ansprechbar und steht für Sie zur Verfügung und bietet folgende Leistungen an:
– Medizinische Betreuung
– Mittagstisch
– Frisör/Fußpflege
– Krankengymnastik
– Gemeinsame Freizeitaktivitäten
– Nutzung des Gemeinschaftsraumes im Hause auch für private Familienfeiern

Melden Sie sich bitte über das Kontaktformular unter Angabe Ihrer Adressdaten und Telefonnummer. Wir melden uns zeitnah zurück.

Lage

Bad Honnef bietet eine hervorragende Infrastruktur.

Geschäfte für den täglichen und mittelfristigen Bedarf, Kindergärten, Schulen in jeder Form, Ärzte und ein Krankenhaus sind im Innenstadtbereich vorhanden.

Bad Honnef liegt direkt an der in Richtung Bonn vierspurigen B 42 und hat zwei Anschlussstellen: Rhöndorf und Bad Honnef.

Ausstattung

DETAILS ALLGEMEIN:

– Mehrparteienhaus
– Baujahr 1995
– Kunststoffisolierverglasung
– Lage der Wohnung: 2. Obergeschoss mit Aufzug
– 2 Zimmer auf ca. 48 m² Wohnfläche
– Gasheizung


Raumaufteilung:

Flur, Abstellraum, Duschbad, Wohnzimmer, Küche, Schlafzimmer


DETAILS AUSSTATTUNG:

– Fliesenboden im Bad
– Laminatboden im Schlafzimmer
– Laminatboden im Wohnzimmer
– Bad mit Dusche und Waschmaschinenanschluss
– Einbauküche ( im Kaufpreis enthalten )
– Keller ( ca. 6 m² )
– Abstellraum

Keller Möbliert Rollstuhlgerecht Aufzug Seniorengerecht Vermietet Gäste-WC Balkon vorhanden Terrasse vorhanden Einbauküche Rollladen vorhanden

Energieausweisangaben

  • Enerigeausweistyp Verbrauchsausweis
  • Energiekennwert 122 KWh(m²*a)
  • Energie mit Warmwasser ja
  • Energieausweis erstellt am 03.12.2008
  • Energieausweis gültig bis 03.12.2018
  • Heizungsart Gas-Heizung Zentralheizung
  • Befeuerung / Energieträger Gas

Grundrisse

Wie können wir Ihnen behilflich sein?

Herzlichen Dank für Ihre Anfrage.

Wir werden diese so schnell wie möglich bearbeiten.

Wie können wir Ihnen behilflich sein?
* Pflichtfeld